Tear Comunitário
O projeto de reforma da ONG Tear Comunitário, localizado em frente ao Mercado dos Pinhões, em Fortaleza, parte de um gesto quase arqueológico: revelar, valorizar e reativar a essência de uma arquitetura existente. Implantada em um terreno de 273,68 m², com área construída de 169,37 m², a edificação original — uma residência de linguagem eclética — apresenta características marcantes que foram tomadas como ponto de partida para o projeto.
Ao invés de substituir ou descaracterizar o imóvel, a proposta busca potencializar sua identidade, resgatando elementos que conferem singularidade e memória ao conjunto. Trata-se de um exercício de reconexão com o tempo, onde a arquitetura existente não é obstáculo, mas matéria-prima para a construção de novos usos.
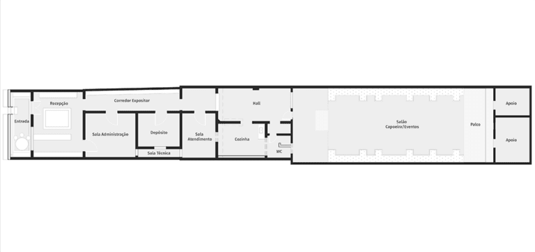
Internamente, a edificação foi reorganizada para atender às demandas funcionais da ONG, incorporando espaços administrativos, recepção, salas de atendimento, depósito e uma área destinada a eventos. Este último ambiente assume papel central no projeto, funcionando como espaço multifuncional que abriga atividades culturais e sociais, incluindo aulas de capoeira, reforçando o caráter comunitário e inclusivo da instituição.
A intervenção respeita e valoriza os elementos originais da residência. Os ladrilhos hidráulicos existentes, de grande riqueza estética, são recuperados e incorporados como protagonistas dos ambientes, trazendo textura, cor e memória ao espaço. A cobertura tem seu madeiramento destacado por meio de pintura branca, ressaltando sua geometria e contribuindo para a luminosidade interna.
As esquadrias recebem pintura em tom amarelo, alinhando-se à identidade visual da ONG e criando um diálogo direto entre arquitetura e comunicação institucional. Esse gesto cromático, ao mesmo tempo sutil e expressivo, reforça a presença do edifício na paisagem urbana e contribui para sua legibilidade enquanto equipamento social.
A reforma, portanto, não se limita à adequação funcional, mas se configura como um processo de ressignificação. A casa deixa de ser apenas uma antiga residência para se tornar um espaço vivo de encontro, aprendizado e transformação social, sem perder sua alma original.
O projeto da ONG Tear Comunitário reafirma o valor da arquitetura como instrumento de continuidade — entre passado e presente, entre forma e uso, entre memória e ação. Um lugar onde as paredes não apenas abrigam atividades, mas contam histórias que seguem sendo escritas coletivamente.
Ficha Técnica
Localização: FortalezaCE
Ano de conclusão do projeto: 2019
Área total construída: 169,37 m²
Arquitetos responsáveis: Alesson Matos
Equipe: Alana Parente e Emmanuel Santos




