Restaurante Iskä
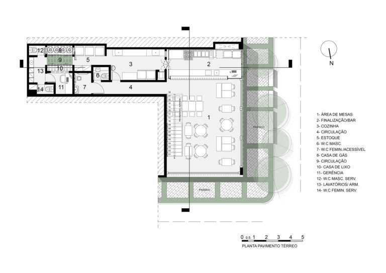
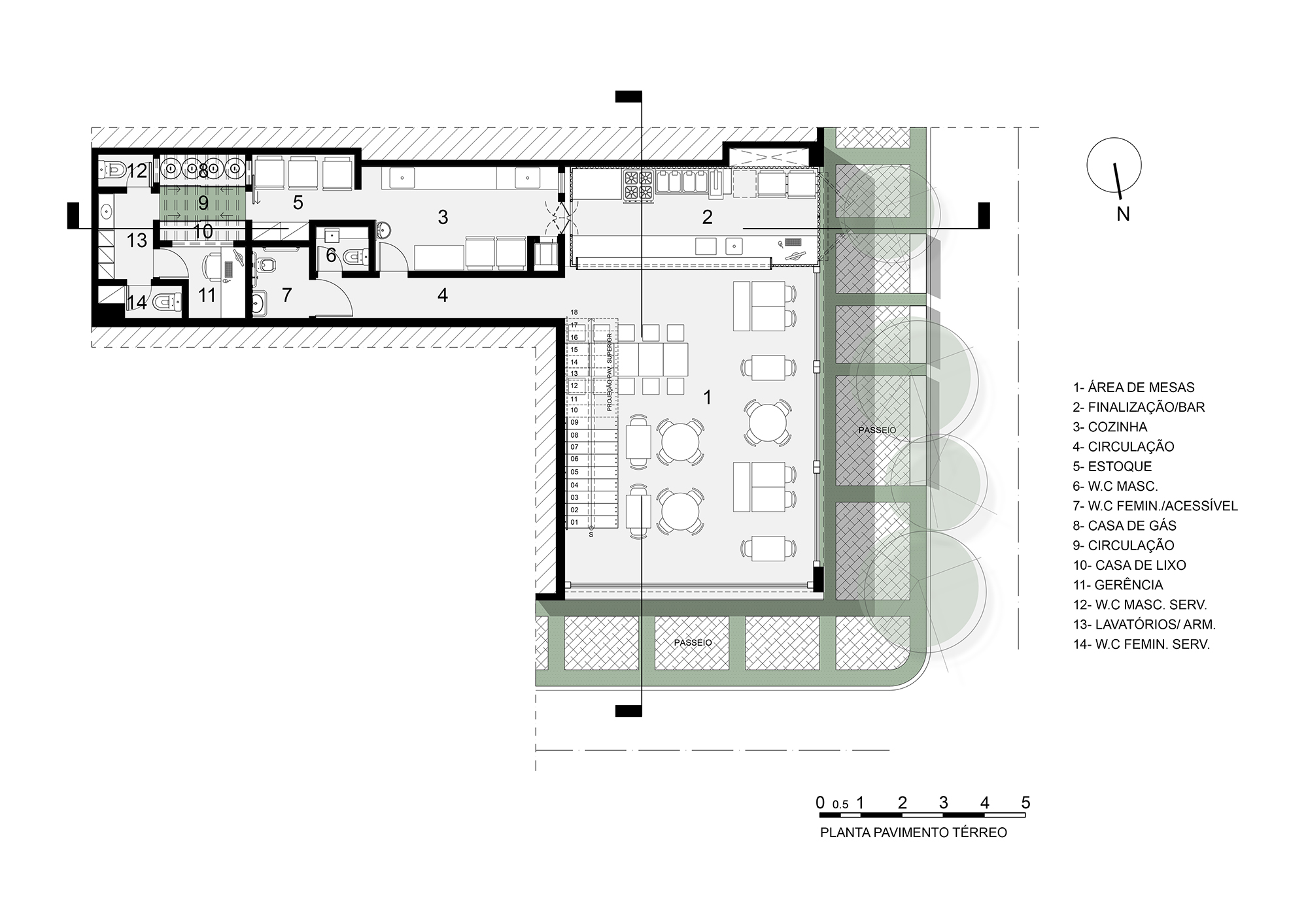
O restaurante está localizado no bairro boêmio da Varjota na cidade de Fortaleza, capital do Ceará. Possui um terreno irregular de esquina, tendo suas frentes com medidas de 6,30m e 10,55m. O programa de necessidades é formado por área de salão de mesas, banheiros masculino e feminino, sendo um deles adaptado a portadores de necessidades especiais, cozinha dividida em área de armazenamento, preparo, cocção e finalização, escritório administrativo, banheiros de funcionários com área de armários para os funcionários, depósito e casa de lixo e de gás. Todo esse programa contempla uma área construída de 181,53 m², composta por pavimento térreo e superior.
O restaurante está inserido dentro de uma malha urbana bem consolidada, na qual sua maior frente está voltada para o oeste. Essa orientação foi um desafio, pois da mesma forma que era necessário proteger o estabelecimento da forte insolação da tarde, queríamos aproveitar um dos maiores espetáculos da cidade de Fortaleza, o pôr-do-sol do Ceará. Logo foi adotado alguns elementos de amenização climática.
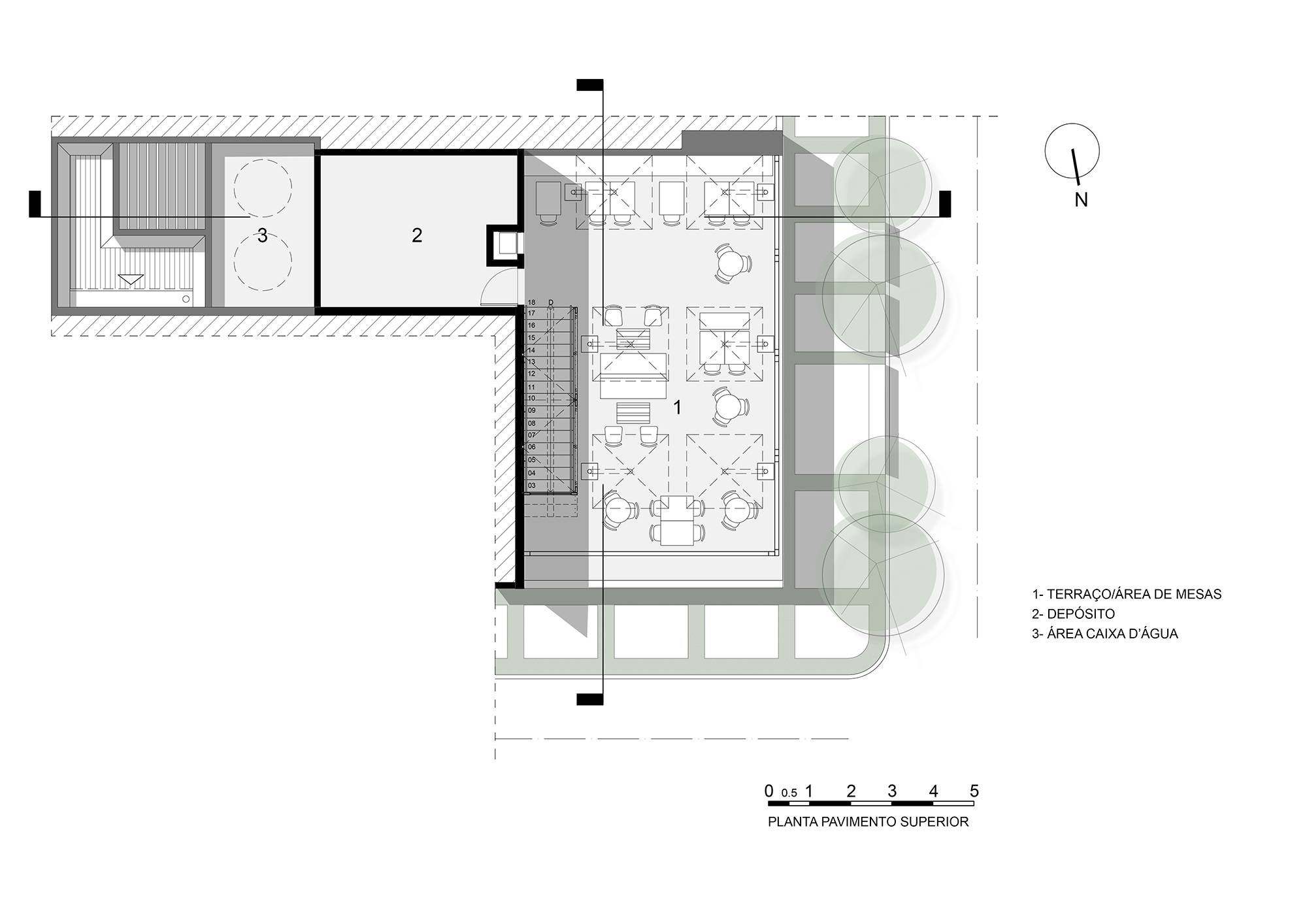
A área de salão de mesas foi dividida em dois, um localizado no térreo, para uma alta rotatividade de atendimento, e o outro no pavimento superior para atendimentos de baixa rotatividade. No superior foi trabalho um espaço tipo terraço, tendo o céu e o sol como grandes partidos deste espaço. Todas as mesas do terraço possuem umbrelones para amenizar o impacto do calor, além do horário de funcionamento do restaurante ajudar para que esse fator não seja um grande problema, pois o mesmo começa a funcionar ao fim de tarde.
Um partido muito importante do projeto era a relação restaurante/rua, o cearense gosta de ver e ser visto, logo o salão de mesas no térreo possui esquadrias com porta tipo camarão (o nome da porta foi uma feliz coincidência, pois o iskä é um restaurante de camarão!) que abertas gera uma relação incrível com o meio urbano, não dando muito para definir onde o restaurante terminava e a calçada começava. Da mesma forma, o terraço era quase que um “palco” para rua, podendo os clientes serem vistos pelos transeuntes de plantão e vice-versa.
A parte administrativa e de serviço do restaurante se encontra ao fundo do terreno, porém a área de cozinha fica entre esta área e a de atendimento. A cozinha que foi dividida em armazenamento, preparo, cocção e finalização, possui um elemento marcante em sua composição. Um contêiner!
Foi inserido um contêiner dentro da edificação, como sendo a área de finalização/bar da cozinha. Peça marcante que se torna protagonista na estética adotada para o empreendimento. As esquadrias de abertura do restaurante, as luminárias do salão térreo e o guarda-corpo do terraço foram feitos a partir de restos de contêiner criando um ambiente completamente personalizado em cima do “branding” definido pela a marca.
A materialidade neste projeto é bem marcante, sendo trabalhado materiais com alto impacto de textura, como concreto aparente, tijolinho branco, cimento queimado e o ferro. Além de ser trabalhado as cores definidas pela paleta da marca. O branco e o preto aparecendo de forma mais livre, quanto o laranja sendo usado como ferramenta para criação de marcos dentro da edificação, como por exemplo o contêiner!
A inovação está no “DNA” da marca iskä, logo foi pensado, também, no impacto que o restaurante poderia ter com o mesmo estando fechado. A localização do restaurante é dentro de um centro gastronômico boêmio da cidade, e isto trazia uma consequência infeliz a região, a rua se tornava um “não-lugar” de dia e só ganhava vida no fim de tarde para de noite. Então foi pensado para que o edifício pudesse ter algum tipo de função durante o tempo em que ele se encontrava fechado. A solução adotada foi o restaurante ser uma galeria de arte durante o dia! Suas portas camarão, quando fechadas, se tornaram paineis artísticos voltados para a rua. Uma grande instalação urbana de arte! No qual a ideia é ter uma rotatividade de exposições, todas trazendo o trabalho de artistas plásticos locais. Desta forma, o iskä passaria a ter um papel e uma função social para com a cidade de Fortaleza.
Ficha Técnica
Localização: Fortaleza/CE
Ano de conclusão da obra: 2014
Área total construída: 181,53 m²
Arquitetos responsáveis: Alesson Matos e Igor Juaçaba
Arquitetos colaboradores: Vanessa Félix, Herman Dantas e Waldemar Felipe
Equipe: Isaac Câmara, Arilo Miranda
Fotógrafa: Sabrina Moura



















