Jardim Matos
O projeto paisagístico desenvolvido para esta residência unifamiliar partiu de dois conceitos centrais: contemplação e convivência. A proposta buscou não apenas valorizar esteticamente os espaços externos, mas também oferecer aos moradores uma vivência sensorial rica e acolhedora, capaz de promover encontros, pausas e bem-estar.
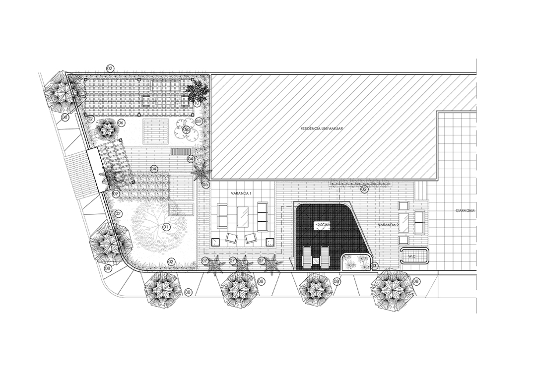
Para isso, foi desenhado um jardim integrado e funcional, com áreas semi-cobertas por caramanchões, que se transformam em verdadeiros refúgios para estar e conversar. Esses espaços de sombra e conforto são fortalecidos pelo uso de trepadeiras de tumbérgia roxa, que além de proporcionar cobertura vegetal, trazem um caráter ornamental e atraem biodiversidade para o jardim.
A piscina existente passou por uma reforma completa, ganhando uma área rasa do tipo “prainha”, ideal para o lazer de crianças e para o relaxamento dos adultos. O novo revestimento em pastilhas de porcelana 5×5 em miscelânea de azuis confere um ar contemporâneo ao espelho d’água. A cascata também foi redesenhada, agora com três lâminas d’água, criando efeito visual e sonoro que potencializa a sensação de frescor e tranquilidade. Para garantir a segurança dos usuários, foi instalado um guarda-corpo de proteção ao redor da piscina.
No que diz respeito ao desenho do piso, foi criado um novo percurso de caminhamento no jardim, com revestimento em porcelanato amadeirado, proporcionando sofisticação e conforto térmico ao caminhar, com acabamento em granito verde Ubatuba, que reforça a elegância e durabilidade dos elementos construtivos.
O banheiro de apoio ao deck também foi totalmente reformado, recebendo novos revestimentos, louças e metais, harmonizando com a linguagem natural e atual do restante do projeto.
A vegetação nativa foi priorizada em todas as escolhas, garantindo facilidade de adaptação ao solo, baixo consumo hídrico e valorização da flora local. Além da tumbérgia, foram incorporadas espécies como helicônias, entre outras, criando volumes, texturas e cores ao longo de todo o terreno.
Por fim, a iluminação foi cuidadosamente pensada para valorizar o paisagismo em diferentes momentos do dia: uma iluminação decorativa focal para destacar espécies vegetais e outra funcional para uso seguro e confortável do espaço durante a noite, garantindo que o jardim permaneça vivo e convidativo mesmo após o pôr do sol.
O resultado é um espaço externo que amplia a casa, promovendo lazer, contemplação e pertencimento — um jardim que se transforma em extensão da vida cotidiana e em espaço de memórias.
Ficha Técnica
Localização: Fortaleza/CE
Ano de conclusão da obra: 2015
Área total construída: 253,57 m²
Arquitetos responsáveis: Alesson Matos e Vanessa Félix
Equipe: Rafael Leite
Fotógrafo: Alesson Matos






































