Hotel Posco
Localizado na rodovia 422, km 11,5 S/N com CEP 62.670-000 nas proximidades do Complexo Portuário e Industrial do Pecém no estado do Ceará, o terreno possui uma área de 70.300,00 m². Possuindo testada aproximada de 150 metros voltada para o sul e profundidade de lote aproximada de 470 metros.
O terreno tem por características físicas a presença de um pequeno rio cruzando no sentido transversal do mesmo, logo formando uma canaleta de passagem e definindo certa vegetação ciliar no entorno. Mas, basicamente, todo o terreno é predominantemente plano com a presença de coqueiros, mangueiras, azeitoneiras, goiabeiras, cajueiros, etc. O Norte está voltado para o fundo do terreno com leve inclinação para a esquerda de quem olha de frente para o terreno. Sua ventilação vem, predominantemente, pela a lateral direita do terreno (lado Sul/Leste) e a insolação da tarde pela a lateral esquerda de quem olha de frente para o terreno.
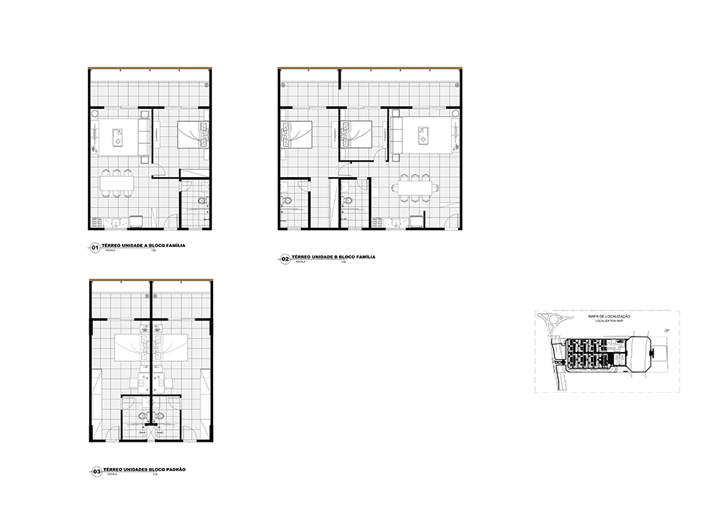
O objeto dos serviços refere-se à elaboração de Projeto de Arquitetura, de quatro blocos de dormitórios padrão contendo no total 384 unidades habitacionais e um bloco Família contendo 4 unidades habitacionais com sala, cozinha, banheiro e quarto e mais 4 unidades contendo sala, cozinha, banheiro social, um quarto e uma suíte máster com closet. Guarita, bloco de apoio e áreas de lazer, contendo piscina, restaurante, academia, sala de karaokê, administração, quadra poliesportiva, quadra de tênis, e mini-golfe. E áreas de serviço, contendo lavanderia, sala de segurança, cozinha industrial e vestiários. Projeto urbanístico, contendo todos os arruamentos e áreas de estacionamento para veículos de pequeno e médio porte.
Toda a conceituação do projeto foi pensada no conforto ambiental dos blocos e dos ambientes. O posicionamento dos prédios foi posto para o melhor aproveitamento dos ventos predominantes vindos do Sul/Leste e a própria forma dos mesmos foi trabalhada de forma a fazer os ventos circularem e proteger os ambientes do forte sol. O empreendimento possui apenas uma entrada com guarita locada no centro da testada e devido à profundidade do terreno foi necessário incluir um arruamento entrando no terreno no sentido longitudinal. Esta via foi posicionada no lado direito do terreno, de quem olha de frente para o terreno, tendo uma rotatória no final da mesma para ser feita a volta. Em toda a extensão desta via foi locado todas as vagas de veículos de pequeno, médio e grande porte.
A locação dos quatro blocos padrão foi pensada de forma a ter, como foi dito antes, um melhor aproveitamento da ventilação e, também, ter a mínima retirada de árvores possível no terreno. Todos os afastamentos destes blocos estão condicionados com a posição dos maciços de vegetação do terreno, inclusive o fato de ser colocada a via para o lado direito do terreno (lado dos ventos) e os blocos do lado esquerdo (lado do sol) mostra o respeito do projeto para com a vegetação local.
O bloco padrão possui dimensões de aproximadamente 110,00m X 21,00m tendo entrada centralizada com saguão e setor social e de serviço (recepção, sala de apoio a segurança e lavanderia). Corredor central com unidades habitacionais duplamente carregada. Para minimizar a sensação de corredor muito comprido foram feitas umas aberturas no bloco tendo vista para um jardim onde estas aberturas também auxiliam a entrada de ventilação em toda a edificação minimizando esteticamente a massa destes blocos. Dos quartos blocos, dois terão Térreo + 1 pavimento e os outros dois terão Térreo + 2 pavimentos. Os dois blocos que possuirão Térreo + 1 Pavimento no futuro poderá vir a sofrer uma ampliação se tornando Térreo + 2 Pavimentos. E entre os Blocos padrão serão feitas áreas de convivência com jardins, caramanchões, bancos, etc.
Os quatro blocos serão dispostos um atrás do outro no sentido longitudinal do terreno sempre pensando na vegetação local. Depois da locação dos blocos padrão foram posicionados o bloco Família e o bloco do restaurante junto com a piscina. Os dois blocos de frente para a paisagem do rio. O bloco família no lado esquerdo do terreno, de quem olha de frente para o terreno, assim proporcionando maior privacidade para o mesmo e o bloco de restaurante do lado direito próximo da via, facilitando assim a descarga de alimentos e materiais quando necessário.
O bloco Família é uma edificação térrea tendo entrada pelo um átrio que faz uma separação dos dois tipos de unidades habitacionais existentes. O bloco do restaurante é Térreo + 1 pavimento, onde no térreo funciona o restaurante com banheiros e toda a infra-estrutura de uma cozinha industrial regulamentada pela a ANVISA. No bloco do restaurante se tem acesso a duas escadas externas que possibilita o acesso ao primeiro pavimento, neste possuirá setor administrativo (salas de funcionários, salas de reuniões, sala de chefia e banheiros), academia, cinema, salas de karaokê, salão de jogos e vestiários. Junto ao bloco de restaurante está a piscina com integração com o bloco e conseqüentemente com a cozinha, podendo dá suporte a toda área de piscina. Todo este conjunto tendo vista, junto com o bloco Família, ao rio.
O rio gera uma separação de área possível de construção no terreno, pois deve haver um afastamento do rio de 30 metros a partir de seu eixo, mas o que foi de fato feito, foi um respeito as características vegetais no entorno do rio. Então o afastamento utilizado foi maior do que os dos 30 metros, o que definiu os afastamentos foi o tipo de vegetação de solo da região no entorno do rio, sendo está considerada pelo o projeto a Área de preservação permanente (APP).
Está separação veio até a ajudar com as definições das funções e dos usos do empreendimento. Toda a área de esporte foi colocada para depois do rio. Quadra poliesportiva, quadra de tênis e o mini-golf. Foi feito dois acessos ao outro lado do rio através de passarelas nas extremidades do terreno. Devido a distância gerada destes usos á alguma unidade de apoio de vestiários, foi posicionado um bloco de apoio com vestiários e depósitos entre as duas quadras. Tendo claro o mesmo afastamento do rio utilizado no outro lado do mesmo.
Todo o projeto tem como objetivo gerar uma área de moradia de qualidade e de lazer. Isto fica claro na implantação do mesmo, onde se ver a separação das atividades MORADIA-LAZER, característica importante do projeto e solicitado pelo o cliente.
Ficha Técnica
Localização: Pecém/CE
Ano de conclusão do projeto: 2012
Área total construída: 17.049,35 m²
Arquitetos responsáveis: Alesson Matos e Igor Juaçaba
Equipe: Vanessa Félix, Beatriz Lelis, Giselle Negreiros, Isac Câmara, Thiago Fernandes, Eribaldo Lima, Herman Dantas, Waldemar Felipe e Tainara Santos.























