Edifício Maracas
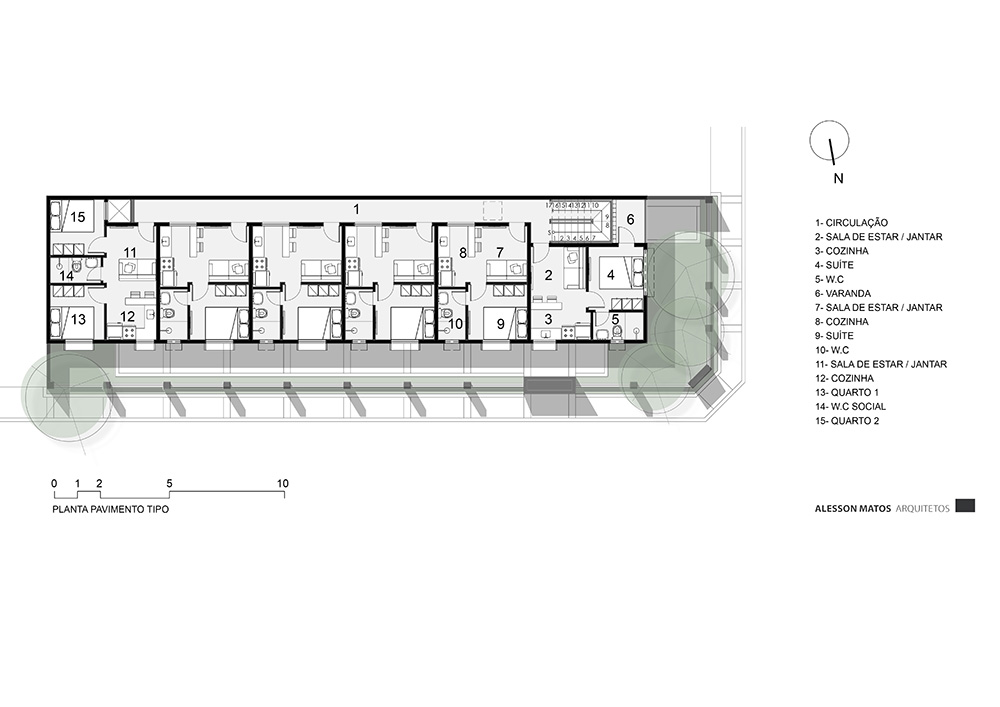
O projeto do Edifício Maracas, localizado no município de Maracanaú, foi concebido a partir de uma premissa clara: viabilizar uma arquitetura residencial de qualidade com racionalidade econômica, atendendo a um contexto urbano que demanda soluções acessíveis e eficientes. Implantado em um terreno de esquina com área de 240,16 m² e área construída total de 668,16 m², o edifício organiza-se em térreo mais três pavimentos, configurando uma tipologia compacta e otimizada.
O programa habitacional é distribuído de forma a maximizar o aproveitamento do lote, com cinco unidades no pavimento térreo e seis unidades em cada um dos pavimentos superiores, totalizando 23 apartamentos. As unidades apresentam metragens de 21,00 m², 25,44 m² e 28,50 m², atendendo a diferentes perfis de moradores e consolidando uma proposta de moradia funcional, voltada à praticidade do cotidiano.
A concepção do projeto parte de uma lógica de otimização construtiva, na qual a simplicidade dos sistemas e a escolha criteriosa de materiais desempenham papel fundamental. Em função da necessidade de controle de custos, foram adotados materiais de fácil execução e manutenção, como textura branca nas fachadas, concreto aparente, elementos vazados em cobogó cerâmico e acabamentos em cimento queimado. Essa paleta, além de economicamente viável, contribui para a construção de uma linguagem arquitetônica honesta, na qual os materiais são apresentados em sua forma essencial.
O uso do cobogó, além de seu valor estético e cultural, atua como elemento de ventilação e iluminação natural, favorecendo o conforto ambiental das unidades e reduzindo a dependência de sistemas artificiais. Já o concreto aparente e o cimento queimado reforçam a ideia de uma arquitetura direta, sem excessos, onde a expressão construtiva se torna parte da identidade do edifício.
A implantação em esquina foi explorada como oportunidade para ampliar a relação com o entorno urbano, permitindo melhor ventilação cruzada e maior incidência de iluminação natural nas unidades. Essa condição também contribui para a leitura volumétrica do edifício, que se apresenta de forma clara e objetiva na paisagem.
O Edifício Maracas, portanto, traduz uma abordagem contemporânea da habitação de interesse econômico, na qual custo e qualidade não são tratados como opostos, mas como variáveis a serem equilibradas. Trata-se de uma arquitetura que encontra na simplicidade sua força, e na racionalidade construtiva, sua viabilidade — um exercício de síntese entre necessidade, técnica e forma.
Ficha Técnica
Localização: Maracanaú/CE
Ano de conclusão do projeto: 2018
Área total construída: 668,16 m²
Arquitetos responsáveis: Alesson Matos e Vanessa Félix
Equipe: Thiago Fernandes







