Edifício Lagoa Seca
Um terreno situado no loteamento denominado Jardim Gonzaga, constituído pelos lotes nº 04-B e 05, da quadra B5, localizada no bairro Jardim Gonzaga, no município de Juazeiro do Norte CE, com uma área total de 570,00m², extremando: Ao norte, com o lote 11 da mesma quadra, medindo 19,00m; Ao sul, com a Rua Manoel Lopes Bezerra, medindo 19,00m; Ao leste, com a Rua Odete Matos de Alencar, medindo 30,00m; Ao oeste, com o lote 04-A da mesma quadra, por onde faz lado esquerdo, medindo 30,00m.
O terreno tem por características físicas a presença de uma inclinação de 10%, partindo da rua Odete Matos de Alencar ao fundo. Sua ventilação vem da lateral esquerda do terreno (lado Leste), possui a ventilação predominante do nosso estado. E a insolação da tarde pela a lateral esquerda de quem olha da Rua Odete Matos de Alencar para o terreno.
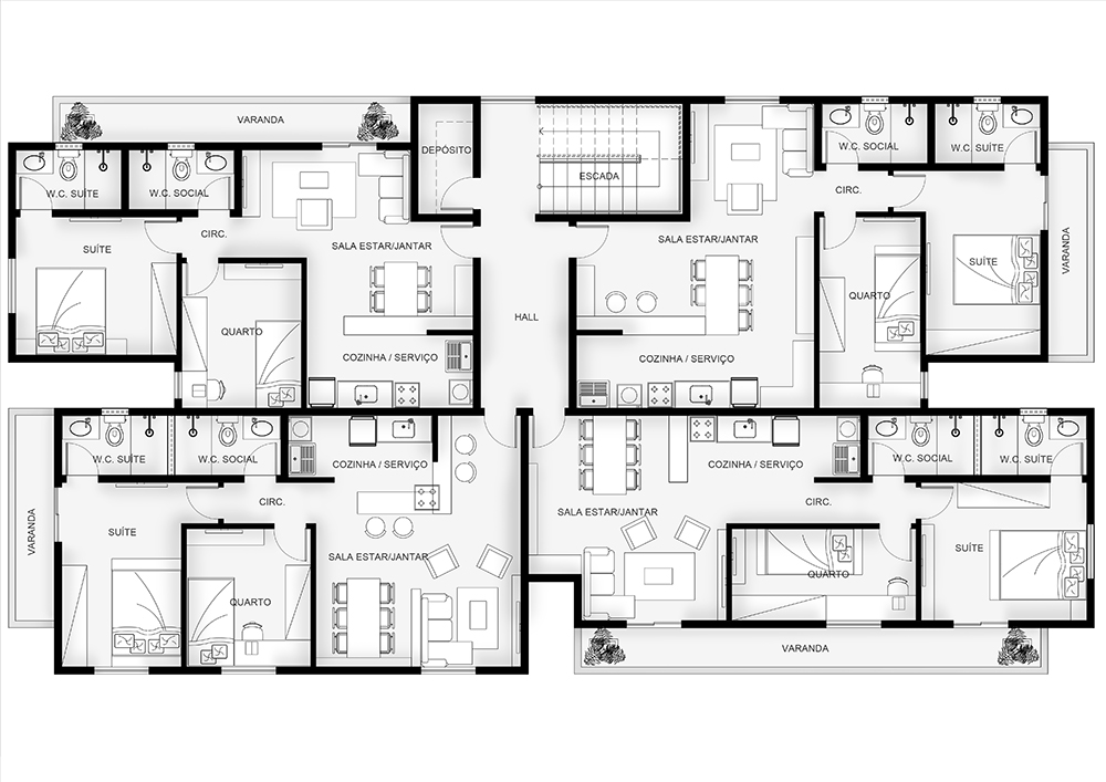
O objeto dos serviços refere-se à elaboração de Projeto de Arquitetura, de uma residência multifamiliar com 1.094,77 m² de área construída, com afastamentos de 5 metros nas duas frentes do lote, 1,50 metros na lateral e 1,50 metros no fundo. Toda a conceituação do projeto foi pensada nas exigências do cliente. Foi pensado numa edificação contemporânea com traços muito simples que refletisse a simplicidade e praticidade de viver. São 16 apartamentos que variam em área de 47,00 m² a 59,00 m² de área útil aproximadamente. Em cada pavimento temos 4 apartamentos inclusive no térreo, onde foi trabalhado uma portaria para receber seus moradores e possíveis visitantes. Temos uma escada que liga todos os pavimentos e um depósito em todos os andares para dar auxílio aos seus condôminos. Cada apartamento possui uma vaga de garagem, logo a edificação possui 16 vagas para veículos. Cada unidade habitacional possui uma cozinha, área de serviço, sala de estar/jantar, banheiro social, um quarto e uma suíte com ar condicionado. Uma característica conceitual do projeto é a presença das varandas em todos os apartamentos, varandas estas que ficam alternando em toda edificação tendo como resultado, uma volumetria ímpar em frente a outros edifícios do mesmo programa. O volume da edificação com linhas simples será todo revestido em textura com detalhes em perfil de alumínio, transmitindo assim o estilo arquitetônico solicitado pelo cliente.
Ficha Técnica
Localização: Juazeiro do Norte/CE
Ano de conclusão do projeto: 2013
Área total construída: 1.094,77 m²
Arquitetos responsáveis: Alesson Matos e Igor Juaçaba
Equipe: Waldemar Felipe, Vanessa Félix, Thiago Fernandes e Isac Câmara.







