Edifício Frontier
O Edifício Frontier, localizado na Avenida Santos Dumont, esquina com a Rua Ildefonso Albano, em Fortaleza, insere-se em uma das áreas mais dinâmicas da cidade, caracterizada pela intensa atividade comercial e de serviços. Implantado em um terreno de 1.452,00 m², o empreendimento totaliza uma área construída de 5.304,60 m², configurando-se como um edifício de uso misto voltado à otimização do potencial econômico e à racionalidade construtiva.
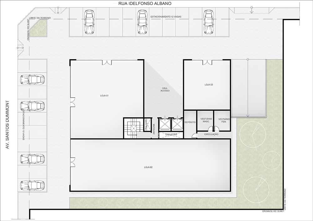
O programa arquitetônico organiza-se de forma clara e funcional, com dois pavimentos de subsolo destinados a estacionamento, totalizando 90 vagas de veículos, térreo voltado para uso comercial com lojas e lobby de acesso, e quatro pavimentos tipo compostos por salas comerciais, sendo 16 unidades por pavimento. Essa configuração responde diretamente às demandas do mercado local, privilegiando flexibilidade de uso e eficiência na ocupação.
O partido arquitetônico adota uma abordagem pragmática e objetiva, orientada por critérios de viabilidade econômica, rapidez construtiva e clareza formal. A edificação é concebida a partir de um volume prismático de geometria simples, cuja forma cúbica reforça a leitura de um objeto compacto e racional no tecido urbano.
A estrutura independente em concreto armado permite maior liberdade na organização interna das plantas, favorecendo a modulação das salas comerciais e possibilitando diferentes configurações de layout conforme as necessidades dos usuários. Essa independência estrutural também contribui para a flexibilidade ao longo do ciclo de vida do edifício.
A expressão arquitetônica se constrói a partir da repetição e do ritmo. As fachadas são marcadas por esquadrias em alumínio e vidro, dispostas em planos verticais contínuos, de piso a teto, que conferem leveza ao volume e estabelecem uma textura homogênea ao conjunto. Esse sistema de aberturas cria uma cadência visual que reforça a verticalidade e contribui para a identidade do edifício no contexto urbano.
O revestimento em ACM na cor branca enfatiza o caráter contemporâneo da edificação, além de atender a critérios de durabilidade e baixa manutenção. A combinação entre a neutralidade do revestimento e a transparência das esquadrias resulta em uma linguagem sóbria e alinhada à arquitetura corporativa contemporânea.
Dessa forma, o Edifício Frontier se apresenta como uma solução arquitetônica coerente com seu contexto e finalidade, ao articular eficiência espacial, clareza construtiva e expressão formal. O projeto reafirma a importância de uma arquitetura objetiva e bem resolvida, capaz de atender às demandas do mercado sem abrir mão de uma identidade estética consistente.
Ficha Técnica
Localização: Fortaleza/CE
Ano de conclusão do projeto: 2013
Área total construída: 257,64 m²
Arquitetos responsáveis: Alesson Matos e Igor Juaçaba
Equipe: Vanessa Félix, Waldemar Felipe, Eribaldo Lima e Thiago Fernandes







