Condomínio Villa Giardini
O condomínio multifamiliar Villa Giardini está situado no bairro Passaré, no município Fortaleza, capital do Estado do Ceará. O condomínio com área de 4.175,45 m² possui três frentes, a fachada principal está voltada para a R. D enquanto as outras duas frentes estão direcionadas para a Av. dos Paroáras e a R. João Granjeiro.
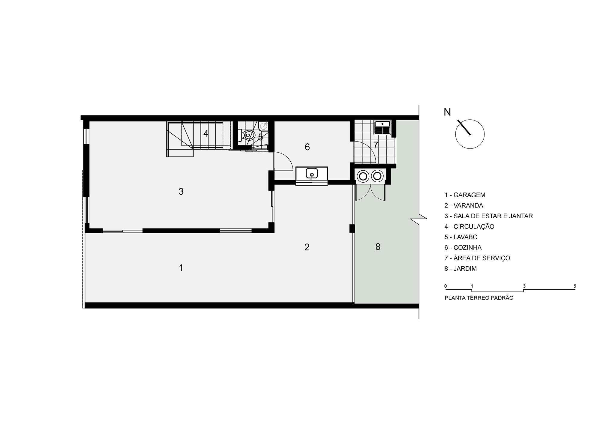
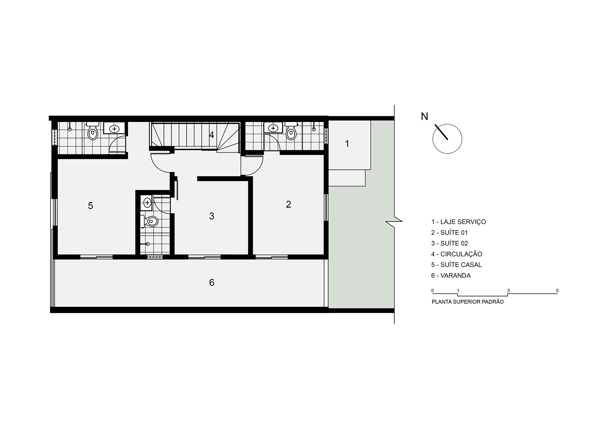
O condomínio contempla no seu programa de necessidades 22 residências familiares duplex de 141m² que possuem 3 suítes, varanda lateral e vagas na garagem para até 2 veículos; e área de lazer com playground, salão de festas, piscina adulto e infantil com prainha, praça de convivência e espaço fitness.
Os conceitos utilizados no projeto foram a simplicidade visual, a facilidade da leitura do espaço, correto aproveitamento bioclimático, aumento da salubridade, alinhamentos e acessibilidade.
O projeto conta uma guarita e duas entradas, e a partir desses elementos centrais na fachada, são traçados eixos de alinhamento que servem como norteamento para os acessos, a distribuição das unidades habitacionais e ambientes da área de lazer.
O formato do terreno e o seu posicionamento em relação a nascente e poente contribuíram para o melhor posicionamento das residências de forma a facilitar o aproveitamento da ventilação e iluminação natural. Além disso, durante a elaboração do projeto houve uma preocupação quanto à permeabilidade do terreno, todas as unidades residenciais apresentam um distanciamento em relação aos limites do lote que acabam por estabelecer quintais e áreas de jardim que contribuem na realização de atividades privativas de cada morador.
Com relação a materialidade do projeto, as vias de acessos dos veículos possuem a pavimentação feita de blocos de concreto intertravados que é um material que possibilita a penetração das águas superficiais não permitindo assim a total impermeabilidade do solo, possui um fácil manejo e manutenção. Além dele, foram utilizadas cerâmicas tanto na piscina quanto em partes da área de lazer e gramado.
Como consequência da utilização de grandes espaços verdes, espelhos d’água, pisos e materiais com cores claras, há uma amenização das temperaturas no microclima, diminuição da absorção de calor, aumento da salubridade e da reflexão de maneira eficiente dos raios solares o que favorece na qualidade de vida dos moradores.
Ficha Técnica
Localização: Fortaleza/CE
Ano de conclusão da obra: 2008
Área total construída: 4.175,45 m²
Arquitetos responsáveis: Alesson Matos, Igor Juaçaba e Rafael Rossato
Arquitetos colaboradores: Vanessa Félix
Equipe: Waldemar Felipe
Fotógrafa: Waldemar Felipe









