Condomínio Grand Jardins
O condomínio está localizado no bairro Guaribas no município Eusébio. O município de Eusébio, graças ao custo-benefício da vida fora da cidade, tem se destacado excepcionalmente no desenvolvimento no setor imobiliário. O terreno dispõe de um formato retangular, apresenta uma área total de 5.812,92 m² e detém, como delimitações de frente e de fundos, respectivamente a rua Manoel Jorge de Castro, que é onde está localizada as duas entradas do condomínio, e a rua Dr. Raimundo Guimarães. O condomínio dispõe de um amplo programa de necessidades composto por 43 unidades residenciais com lotes até 500m² e que variam entre duas tipologias residenciais; e uma espaçosa área de lazer da qual dispõe de playground, campo de futebol, espaços de jardim, praças de convivência, salão de festas, piscina adulto e infantil, sauna integrada à piscina, deck com churrasqueira, piscina com raia e espaço de prainha, espaço Zen, espaço fitness, vagas de estacionamento para visitantes e um minigolfe.
Os conceitos utilizados no projeto foram a simplicidade visual, a facilidade da leitura do espaço, correto aproveitamento bioclimático, aumento da salubridade, alinhamentos, acessibilidade e formas orgânicas.
O projeto apresenta, na sua fachada principal, uma guarita e duas entradas centralizadas no terreno que dão acesso ao complexo. A partir desses elementos na fachada, eixos de alinhamento foram traçados e serviram como norteamento dos acessos, da localização dos ambientes da área de lazer e demais construções do condomínio. Devido a presença de crianças e adultos cruzando as vias internas devido a área de lazer no centro do loteamento e a possibilidade de os automóveis circularem em altas velocidades dentro do condomínio, foram utilizadas formas sinuosas no trecho das vias internas próximas à área de lazer com a finalidade de forçar os motoristas a trafegarem com velocidades amenas.
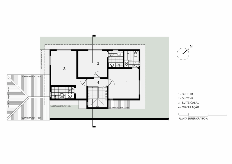
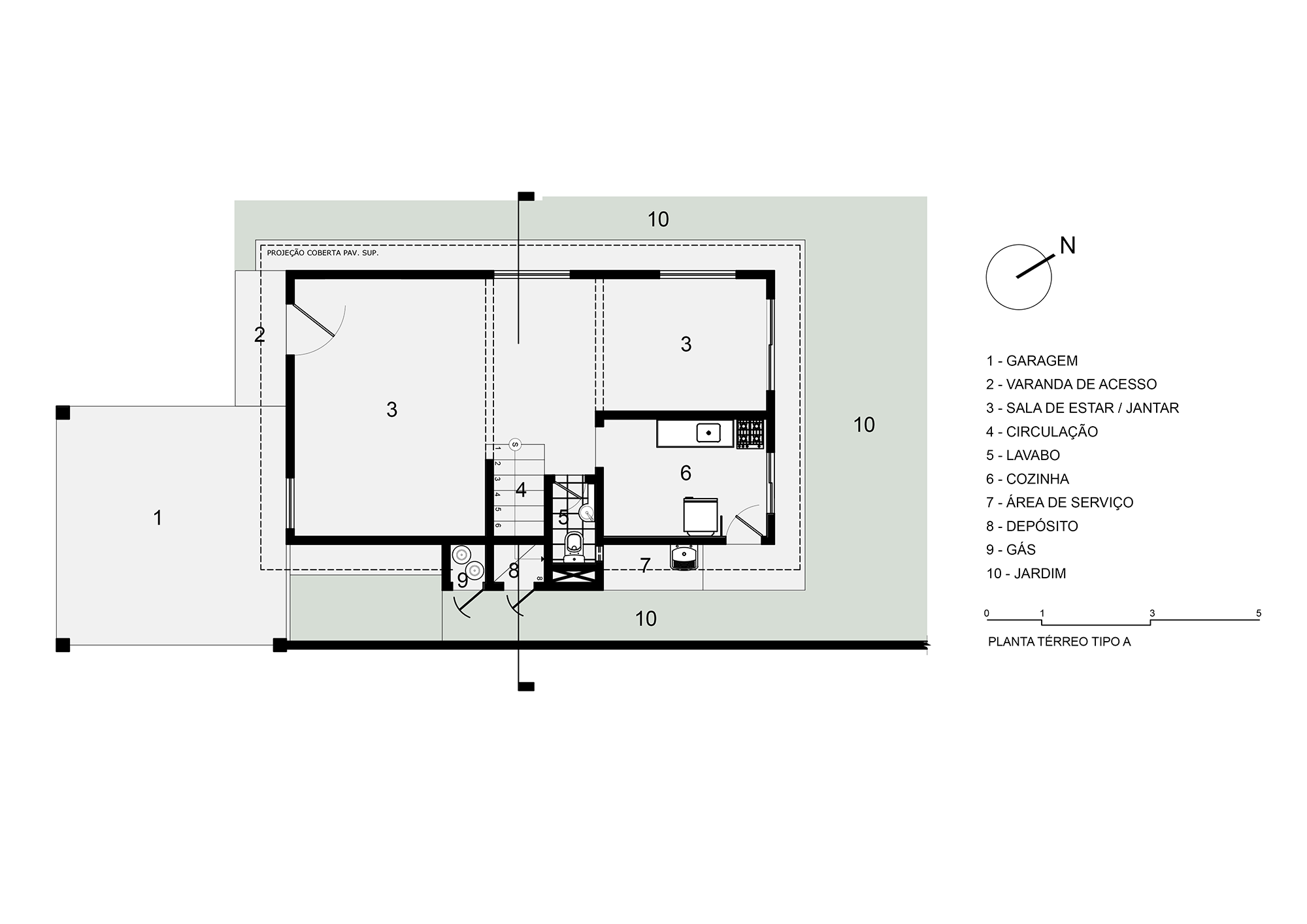
Devido ao formato do terreno, um dos objetivos do projeto foi que todas as unidades residenciais possuíssem o devido aproveitamento bioclimático, para isso foi indispensável a disposição de duas tipologias residenciais, posicionadas de forma a depender da implantação no terreno. As modificações realizadas nas duas tipologias são relativas ao posicionamento de cada casa em relação à nascente e ao poente e esse posicionamento definiu a locação dos ambientes internos da residência a fim de obter o melhor aproveitamento da ventilação e iluminação natural. Além disso, houve também uma preocupação quanto a permeabilidade do terreno, todas as unidades residenciais apresentam um excelente distanciamento em relação às limítrofes do lote, estabelecendo assim amplos quintais e áreas de jardim que ajudam na realização de atividades privativas de cada morador.
Quanto aos materiais utilizados no projeto, toda a pavimentação externa é formada por blocos intertravados de concreto com diferentes cores para proporcionar diferentes paginações. A utilização de piso intertravado é interessante por proporcionar vantagens técnicas e de sustentabilidade devido a facilidade do manejo, da manutenção e por possibilitar um melhor escoamento das águas superficiais. Além desse material, foram utilizados piso cerâmico polido na cor bege e grama sintética e natural.
Ficha Técnica
Localização: Eusébio/CE
Ano de conclusão da obra: 2007
Área total construída: 5.812,92 m²
Arquitetos responsáveis: Alesson Matos, Igor Juaçaba e Rafael Rossato
Arquitetos colaboradores: Vanessa Félix
Equipe: Waldemar Felipe
Fotógrafa: Waldemar Felipe





















