Casa São José dos Campos
O projeto da Residência São José dos Campos, localizado no Recanto Santa Bárbara, à Rua Petúnia, Quadra U, Lote 18, em São José dos Campos, parte de uma leitura atenta das condicionantes físicas do terreno para a definição de seu partido arquitetônico. Com área de 2.077,45 m², o lote apresenta formato triangular e um desnível aproximado de 10 metros, características que se mostraram determinantes na implantação e na organização espacial da edificação.
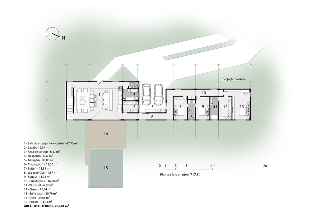
A residência, com área construída de 257,64 m², distribui-se em dois pavimentos e se desenvolve de forma linear, acompanhando as curvas de nível na porção mais elevada do terreno, próxima ao acesso viário. Essa estratégia minimiza movimentações de terra, preserva a topografia natural e favorece a relação visual com a paisagem, ao mesmo tempo em que garante maior domínio e controle sobre o acesso.
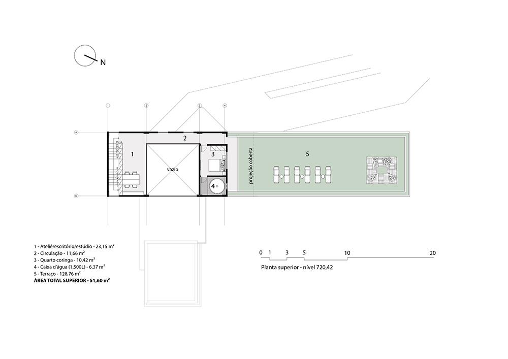
O programa arquitetônico organiza-se de maneira funcional e integrada. No pavimento térreo, concentram-se os principais ambientes de uso cotidiano, incluindo garagem para dois veículos, sala de estar e jantar integradas, articuladas com a varanda e a piscina, lavabo, cozinha, área de serviço, depósito e três suítes, sendo duas com caráter reversível, permitindo flexibilidade de uso ao longo do tempo. No pavimento superior, foram locados um escritório/ateliê e um quarto coringa, espaços que possibilitam usos diversos, como trabalho remoto, atividades criativas ou acomodação eventual de hóspedes.
A adoção de uma planta linear reforça a clareza organizacional e potencializa a ventilação e iluminação naturais, além de favorecer a integração entre os ambientes internos e externos. A estrutura independente em concreto, associada ao uso de tijolos cerâmicos aparentes e esquadrias em madeira e vidro, compõe uma linguagem arquitetônica que busca equilíbrio entre robustez e acolhimento. Essa materialidade foi pensada em resposta às condições climáticas locais, caracterizadas por temperaturas mais amenas em comparação ao litoral, resultando em uma ambiência mais aconchegante e protegida.
Como complemento às estratégias de conforto e uso, propõe-se a criação de um terraço-jardim sobre parte da cobertura do pavimento térreo. Esse espaço amplia as áreas de convivência ao ar livre e permite a fruição dos períodos de maior insolação, estabelecendo uma relação direta entre arquitetura e clima, além de contribuir para o desempenho térmico da edificação.
Dessa forma, a Residência São José dos Campos se configura como um projeto que articula topografia, programa e materialidade em uma solução coerente e sensível ao lugar. Ao se adaptar ao terreno e explorar suas potencialidades, a proposta constrói uma arquitetura que alia funcionalidade, conforto ambiental e qualidade espacial, resultando em um ambiente doméstico que valoriza tanto a vivência cotidiana quanto a relação com a paisagem.
Ficha Técnica
Localização: São José dos Campos/SP
Ano de conclusão do projeto: 2020
Área total construída: 257,64 m²
Arquitetos responsáveis: Alesson Matos
Equipe: Emmanuel Santos, Alana Parente, Camila Cordeiro e Rômulo Abraão






