Casa Jardim
A residência está inserida dentro de um condomínio fechado, localizado no bairro Urucunema na cidade do Eusébio, na região metropolitana de Fortaleza. Possui um terreno regular com uma declividade bastante sutil, tendo de frente (Leste) e fundo medida de 11,50m e laterais de 25,50m. Logo a área do terreno é de 293,25 m². O programa de necessidades é formado por garagem para 2 veículos, sala de estar, sala de jantar, átrio árvore, cozinha, área de serviço, área para churrasqueira (quintal), suíte de hóspede com banheiro reversível, depósito, suíte 1, suíte casal e terraço. Todo esse programa contempla uma área construída de 193,80 m², composta por pavimento térreo e superior.
As principais premissas do projeto, passado pelo o cliente, são de a residência possuir um espaço dialético como marco da casa e de buscar baixo custo de execução. Esses dois fatores nortearam o partido arquitetônico utilizado no projeto. Para a primeira premissa foi pensado como espaço dialético, ou seja, um espaço de encontros e trocas, um jardim com uma árvore como marco. E para a segunda premissa, a utilização de materiais locais e simplicidade na estrutura da residência, fazendo com que se tivesse a menor casa possível, atendendo, obviamente, a necessidade do cliente quanto ao espaço.
O fato de se ter uma árvore no meio da casa fez com que se tornasse necessário um estudo de planta que saísse dos padrões utilizados em casas de condomínio. Pode parecer estranho você entrar na casa e se deparar com um jardim com árvores em vez de uma sala de estar, porém é exatamente isso que acontece. A verdade é que este espaço dialético acabou por se ter uma força “gravitacional”, onde tudo tende a este espaço, partilhando o protagonismo social com a sala de estar/jantar. A casa possui uma planta livre, na qual o espaço dialético, funcionando com átrio central da casa, se integra com a sala de estar/jantar e esse por sua vez com o quintal, onde se encontra a churrasqueira.
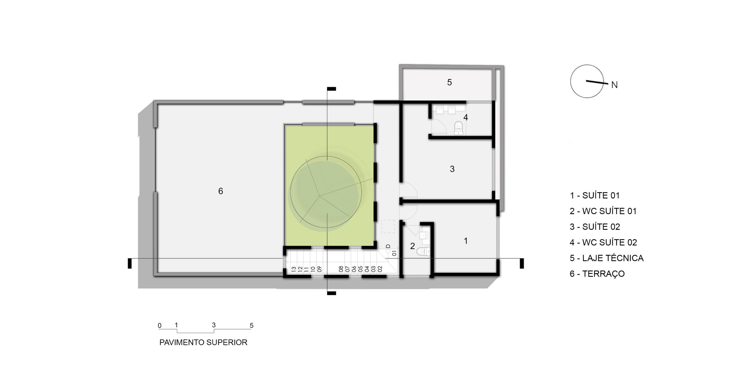
Foi criado no entorno do átrio, uma circulação coberta para se gerar a opção de se proteger de possível chuva, dando uma ideia de um mini-claustro, essa circulação perimetral distribui os ambientes no pavimento térreo, além de situar a escada que dá acesso ao pavimento superior. No pavimento superior a lógica de uma circulação perimetral ao átrio se repete, distribuindo duas suítes e dando acesso ao terraço.
Uma questão interessante é que o fato de se ter um átrio no meio da casa, faz com que a residência pareça ser maior do que ela de fato é. Quem vê de fora a casa, parece ser maior, porém sua metragem de área construída acompanha essa sensação. Da mesma forma, o fato de se ter o programa terraço, é interessante porque se cria um ambiente super interessante sem ter que aumentar a área construída da residência.
Em relação a materialidade, foi trabalhado materiais de baixo custo, como cimento queimado nas áreas secas e no terraço. Em todas as áreas molhadas, como banheiros e cozinha, foi utilizado a pedra ardósia cinza, material de fácil disponibilidade no Ceará. Da mesma forma, na fachada, se utilizou a ardósia como revestimento e também o tijolo cerâmico e textura branca.
O projeto possui uma solução de planta que sai dos padrões convencionais e tem uma utilização de materiais simples de uma forma não simplória. Desta forma, se tendo como resultado uma residência com muita personalidade, uma personalidade com muito orgulho local!
Ficha Técnica
Localização: Eusébio/CE
Ano de conclusão da obra: 2017
Área total construída: 193,80 m²
Arquitetos responsáveis: Alesson Matos e Vanessa Félix
Arquitetos colaboradores: Alana Parente
Fotógrafa: Sabrina Moura










































