Casa Pênha
Implantada em um terreno de 1.250,00 m² no Loteamento Sítio Pênha, no município de Paraipaba, a aproximadamente 100 km de Fortaleza, esta residência unifamiliar de veraneio foi concebida como um abrigo afetivo – um espaço de pausa e reconexão com as origens. A casa está localizada de frente para a Lagoa da Pênha, em uma paisagem singular que reúne elementos do interior cearense e da costa atlântica, criando um cenário de transição onde coqueiros, cajueiros e carnaúbas convivem com os ventos do litoral e o frescor das águas da lagoa da Pênha.O terreno tem por características físicas a presença de um pequeno rio cruzando no sentido transversal do mesmo, logo formando uma canaleta de passagem e definindo certa vegetação ciliar no entorno. Mas, basicamente, todo o terreno é predominantemente plano com a presença de coqueiros, mangueiras, azeitoneiras, goiabeiras, cajueiros, etc. O Norte está voltado para o fundo do terreno com leve inclinação para a esquerda de quem olha de frente para o terreno. Sua ventilação vem, predominantemente, pela a lateral direita do terreno (lado Sul/Leste) e a insolação da tarde pela a lateral esquerda de quem olha de frente para o terreno.
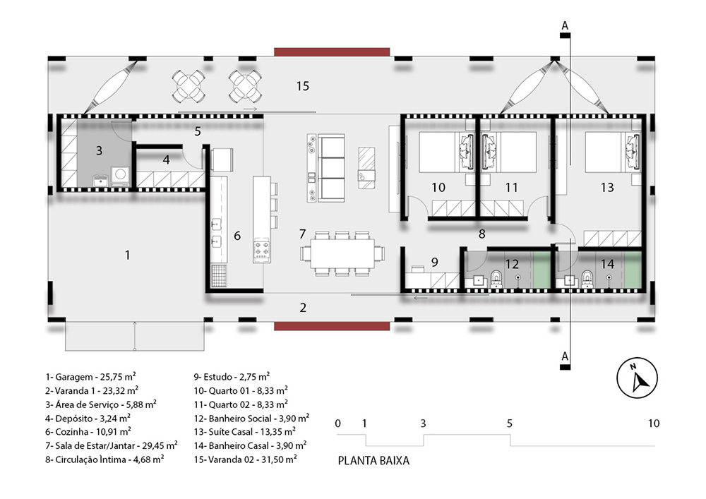
Com 201,39 m² de área construída, a residência está inserida de forma respeitosa no terreno, que possui parte de sua extensão dentro de uma Área de Proteção Permanente (A.P.P) – um trecho essencial que abriga a vegetação da mata ciliar e regula os ciclos de cheia da lagoa. Essa condição ambiental foi tratada não como limitação, mas como potencial, resultando em um projeto que valoriza a paisagem natural e reforça o diálogo entre arquitetura e meio ambiente, além de buscar uma mimetização junto ao conjunto de árvores (cajueiros) existente, logo, a implantação busca fazer parte de um todo.
O programa arquitetônico contempla garagem para dois carros, área de serviço e depósito, sala de estar e jantar integradas à cozinha, área de estudo, dois quartos, um banheiro social, uma suíte de casal e amplas varandas frontais e laterais, fundamentais para o conforto térmico e para a vida ao ar livre. Três solicitações especiais do cliente também nortearam alguns dos partidos arquitetônicos: a criação de um altar religioso – espaço reservado à espiritualidade da família, a previsão de uma área de agricultura familiar, com potencial futuro de se tornar fonte de renda passiva e subsistência e, dada a localização remota, e por haver uma preocupação real com invasões humanas e de animais, foram requisitadas soluções de segurança para ambos os casos de invasões.
Esta não é apenas uma casa de veraneio. É um gesto de permanência emocional, uma arquitetura que acolhe, protege e celebra o modo de viver cearense, à beira da lagoa, entre o silêncio da terra e o sopro do mar.
O conceito principal do projeto é a conexão com o entorno e com a memória afetiva da família, que possui laços antigos com a região. Mais do que um local de lazer, a casa foi pensada para ser um espaço que resgata experiências de infância, banhos de lagoa, entardeceres na rede e refeições em família. Esse afeto moldou a arquitetura (partido), levando à valorização das varandas e a utilização de materiais locais, como a própria terra do terreno. A materialidade empregada faz referência às antigas casas do sertão cearense com a utilização do barro, da madeira e da pintura branca (caiada).
A casa foi estrategicamente posicionada próxima à lagoa, aproveitando a vista e a ventilação, mas também respeitando a Área de Preservação Permanente (APP). Essa decisão liberou um grande espaço frontal no terreno, que passou a ser pensado como jardim de percurso e área para futura agricultura familiar com estufas, fonte possível de renda passiva. O projeto não removeu nenhuma árvore existente — ao contrário, utilizou a vegetação como parte ativa da composição volumétrica da casa, criando sombra, moldura e escala. A cerca de gravetos de madeira remete aos cercados de roçado do sertão, reafirmando o compromisso do projeto com a identidade local, sem abrir mão da clareza formal e da harmonia visual.
A casa foi elevada com embasamento de 40 cm, tanto para dificultar o acesso de pequenos animais, quanto para reforçar a linguagem formal das antigas casas alpendradas, tão presentes na memória afetiva do casal. O alpendre frontal, com pilares de concreto e espaço generoso para redes, propõe tardes preguiçosas ao som do vento e cheiro de café coado — um convite ao tempo desacelerado do interior. O piso em cimento queimado reforça a estética rústica e contínua, ampliando visualmente os ambientes internos, enquanto os banheiros receberam acabamento em pedra ardósia, material abundante e facilmente encontrado na região. A casa é clara, limpa e direta: o branco caiado nas estruturas dialoga com os tijolos cerâmicos aparentes nas paredes, ressignificando a paleta tradicional. As esquadrias de madeira, acompanhadas por portas do piso ao teto com bandeirolas e brises, garantem ventilação cruzada constante e aproveitamento máximo da luz natural.
As instalações hidrosanitárias foram tratadas de forma a trazerem mais vantangens para o futuro empreendimento da família, além de estar alinhadas com os conceitos sutentáveis da edificação, sendo feito um poço profundo com uma cisterna pressurizada, evitando uma caixa d’água no topo da edificação, além de uma estação de tratamento de esgoto residencial, solicitado pela Secretaria Ambiental Municipal da Paraipaba.
A decisão pelo uso da terra do próprio terreno para a produção dos tijolos ecológicos prensados marcou o ponto de partida conceitual do projeto. Esses tijolos, que dispensam queima e têm função tanto estrutural quanto de vedação, garantem isolamento térmico e acústico de alta eficiência. A escolha por um sistema estrutural dependente, com paredes portantes e vigas invertidas de concreto, resultou em um teto com acabamento liso no qual os tijolos tocam diretamente a laje, uma solução elegante e racional. A laje, do tipo treliçada com placas de isopor, contribui para a leveza estrutural e reforça o conforto térmico da casa. A fundação é feita em alicerce corrido com concreto ciclópico, valorizando técnicas locais de boa durabilidade e baixo custo. Um dos desafios mais complexos foi atender à exigência de alta segurança. Optou-se por não utilizar janelas convencionais. A entrada e saída da residência se dá exclusivamente por dois grandes portões de correr de madeira localizados na sala de estar/cozinha, reforçando o sentido de abrigo e controle. Nos demais ambientes, a ventilação e iluminação natural foram garantidas por elementos vazados de tijolos ecológicos cuidadosamente modulados para atender às exigências do código de obras do município. Assim, nasce uma arquitetura com caráter de “bunker afetivo”, que, ao mesmo tempo que protege e acolhe, estimula a vivência dos espaços comuns, como forma de fortalecer os laços familiares. Os quartos, pensados cuidadosamente para o descanso, mantêm abertura visual para o exterior, de forma mais introspectiva e filtrada.
Outro ponto fundamental do projeto foi a decisão de criar, ao invés de um altar interno, uma capela externa nos moldes das antigas casas de fazendas cearenses. Com uma arquitetura contemporânea inspirada na forma de uma pessoa ajoelhada, a capela foi posicionada de frente para a Lagoa da Pênha, criando um cenário de meditação em conexão direta com o natural. Um rasgo na parede, na altura do olhar, e uma iluminação zenital vertical sobre o altar, produzem uma cruz de luz que simboliza fé e transcendência através da própria arquitetura. Os materiais são os mesmos da casa, reforçando a unidade visual e simbólica do conjunto.
Ficha Técnica
Localização: Paraipaba/CE
Ano de conclusão do projeto: 2021
Área total construída: 201,39 m²
Arquitetos responsáveis: Alesson Matos
Equipe: Alana Parente, Emmanuel Santos, Camila Cordeiro e Rômulo Abraão















